West District | ?m | ?s | Truman

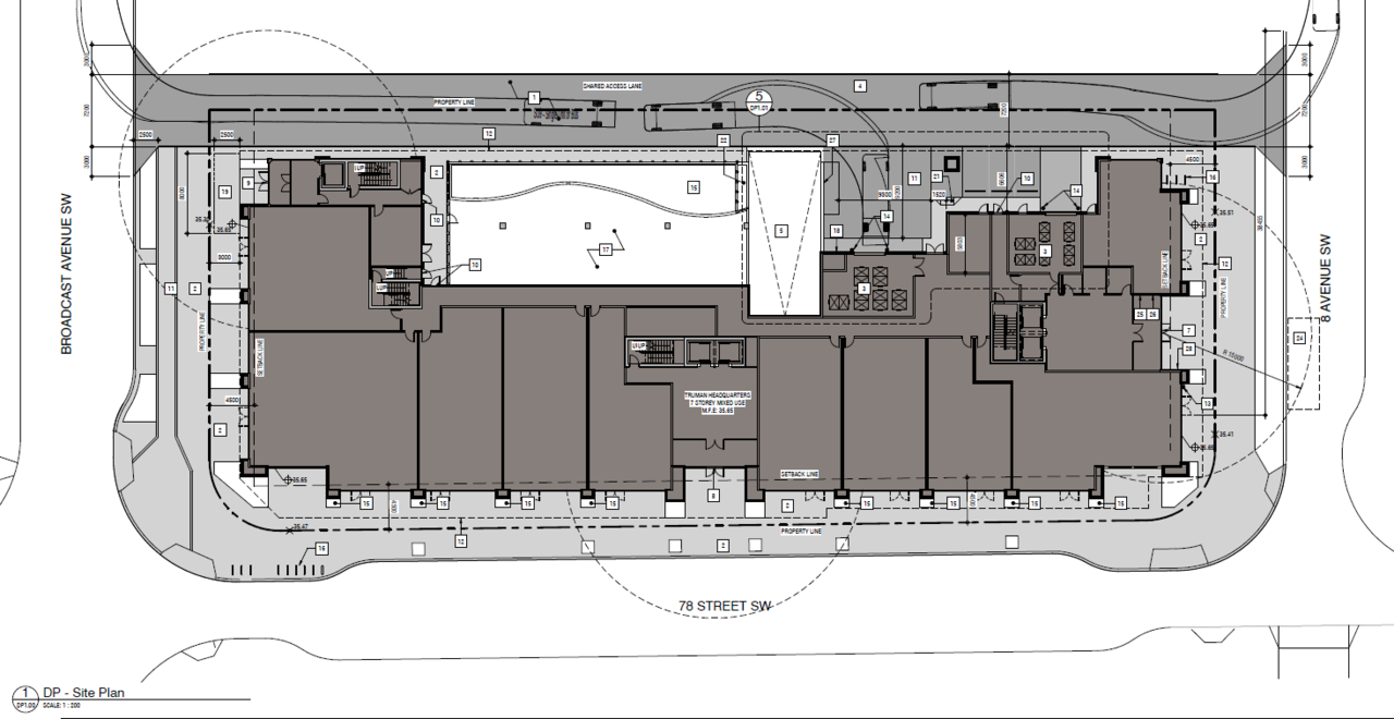
The plans for the new development permit have been uploaded. Turns out this will be Truman's new corporate headquarters, if the title on the drawings is anything to go by. No flashy renderings, but the elevations and site plan. 7 floors, with the top floor being office. Ground floor retail, and perhaps floor 2 as well (can't tell, might be mezzannine spaces).Floors 3-6 are residential for 80 units. Height of 26 meters.
1645199572370.png

1645199619408.png


1645199675945.png


1645199707368.png

1645199726984.png
 
Last edited:

Back
Top