gsunnyg
Senior Member
Seems like there was an expansion plan in place https://www.systemic-ai.com/lacey-court-expansionLacey Court is on fire
Seems like there was an expansion plan in place https://www.systemic-ai.com/lacey-court-expansionLacey Court is on fire
Looks to be mostly contained to the backside on the second floor. I would imagine there is an significant amount of water damage.Didn't even notice when I rode by this morning, hope it's salvageable.
Property owner is for sure taking the payout. Especially if all that's salvageable is the concrete structure.Walked by at lunch, the windows on the 2nd floor are blown out on the 12ave side. Looks like it was a fairly intense fire, but the concrete structure is probably ok.
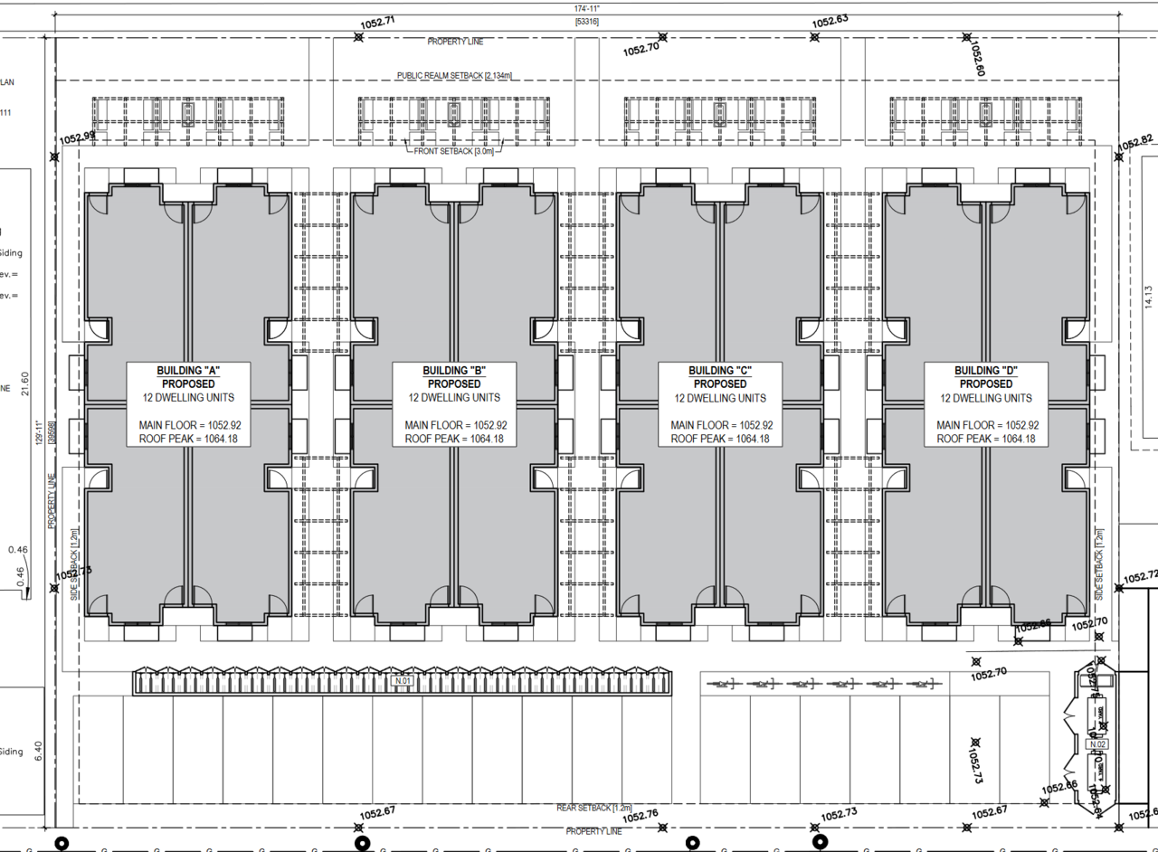
This is what I mean when I talk about (in the 2501 Richmond thread) missing middle having the perception of a parking problem. When you see 48 units and 19 off-street parking spots you can see why people in surrounding houses with a car per person in their house lose it. They project that reality onto this development. In reality, not every single resident in this development will have a car, so it is a none issue.DP and land use on 12th Ave @ 16 Street in Sunalta for 4 stacked townhomes with 48 units total: DMAP
View attachment 524149
View attachment 524150
48 Class 1 bicycle stalls and seeking a parking relaxation for 19 vehicle stalls.




