News   Apr 03, 2020
 6.4K     1 
News   Apr 02, 2020
 8K     4 
News   Apr 02, 2020
 4.7K     0 

Urban Development and Proposals Discussion

408351256.jpg

Infill townhome in Bankview at the junction of 16 St and 21 Ave.
 
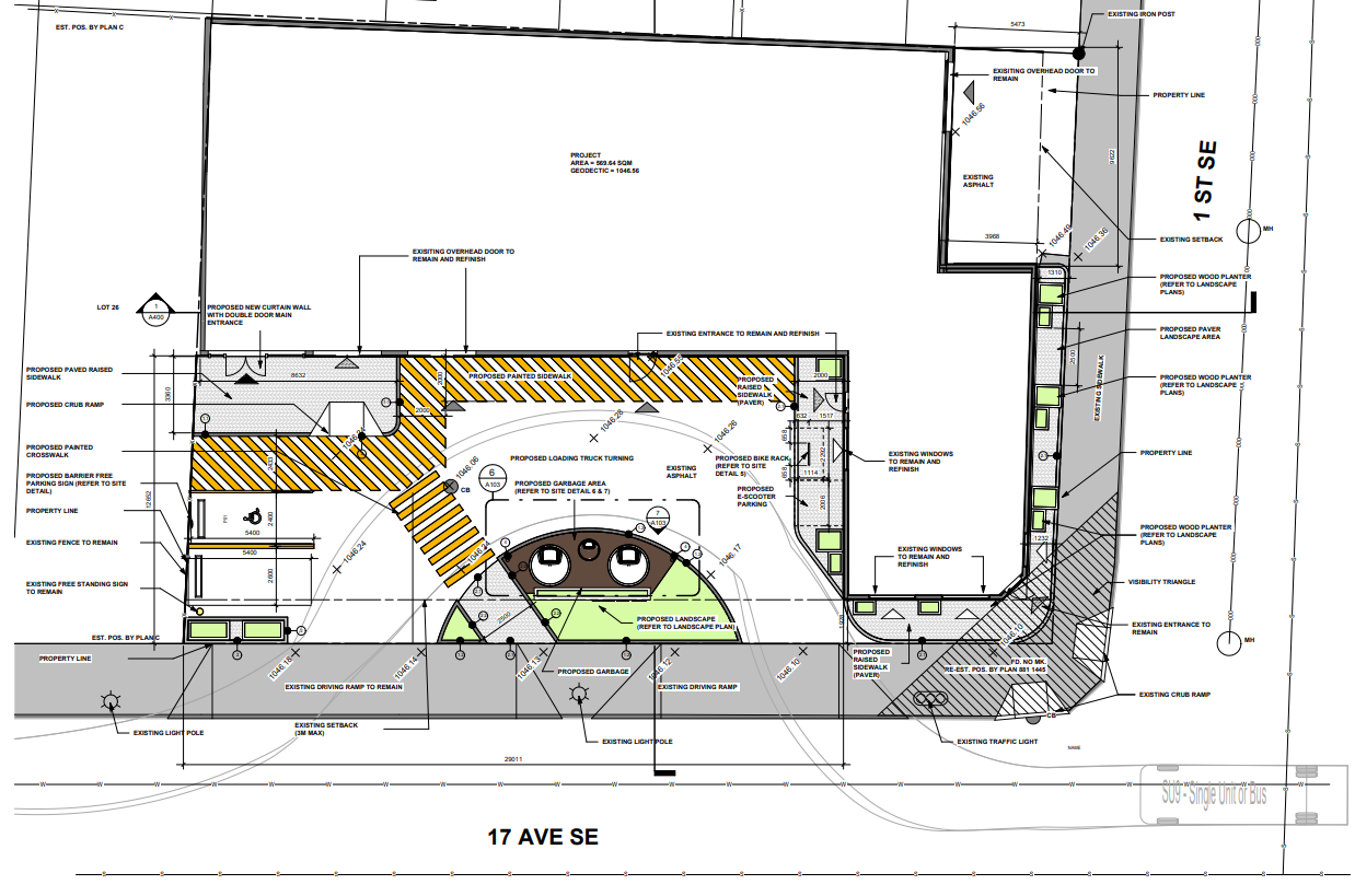
This block along Macleod southbound has a bit going on. It has the 1503 1ST proposal for apartments, the lot along 1ST and 15th AVE is for sale and now... I see this development permit to makeover the building on the corner of 1ST and 17AVE.

1695653630897.png


Is it different? Yes. Is it better? No. There are random random planters, a weird rock garden (which I guess is better than dead grass), a pull through driveway, and generally really poor urban design.

1695653756298.png
 
This block along Macleod southbound has a bit going on. It has the 1503 1ST proposal for apartments, the lot along 1ST and 15th AVE is for sale and now... I see this development permit to makeover the building on the corner of 1ST and 17AVE.

View attachment 509018

Is it different? Yes. Is it better? No. There are random random planters, a weird rock garden (which I guess is better than dead grass), a pull through driveway, and generally really poor urban design.

View attachment 509019

There's ROOM for improvement.
 
This block along Macleod southbound has a bit going on. It has the 1503 1ST proposal for apartments, the lot along 1ST and 15th AVE is for sale and now... I see this development permit to makeover the building on the corner of 1ST and 17AVE.

View attachment 509018

Is it different? Yes. Is it better? No. There are random random planters, a weird rock garden (which I guess is better than dead grass), a pull through driveway, and generally really poor urban design.

View attachment 509019
Thinking about this a bit and the applicant listed (a BBQ place), I am starting to get the impression the whole design is literally just to figure out how to load the garbage bins while doing minimal renovations as possible and not interfering with the flow of 1st Street SE car sewer.

The solution arrived at was to have the garbage bins adjacent to the walkable Main Street of 17th Ave, and keep the wide, swooping access ramps across what is arguably the busiest sidewalks in the city.

I am going to take a wild guess and think that any talk of loading garbages off 1st Street SE (where there is already a back-of-house garage ramp and door) was shot down given the importance of keeping cars flowing. This, of course, neglects 1 Street SE here is over-built with extra unneeded lanes peak oriented traffic flow, and things like garbages can be scheduled to just not conflict with the busier parts of the day.

A billion of public investment into major event facilities a hundred metres away, plus opening up 17th Ave into the grounds and this is the land use and design. Yikes. Great work everyone, no notes - glad it seems stalled out(?) so at least we have another try in a few years.
 
the applicant listed (a BBQ place)
BBQ Place is beside it to the west.
1695660393493.png


This one is DP2023-05943 described as:
Description: Changes to Site Plan: Conference and Event Facility (parking & landscape), Revision: Conference and Event Facility (mezzanines), Change of Use: Conference and Event Facility
Applicant: CYNC ARCHITECTURE
 
These changes might not be much, but if they help spur even a dozen builds, it’s better than nothing.
I’m curious if developers knew the GST announcement was coming, and they’ve been holding off on some of their builds until it takes effect. GST on a $30 million building is a lot of money.
They didn't. Interest rates made the hurdle rate for investment much higher, so lowed investment. This will reduce the capital cost, enabling construction with the higher hurdle rate.
 
This block along Macleod southbound has a bit going on. It has the 1503 1ST proposal for apartments, the lot along 1ST and 15th AVE is for sale and now... I see this development permit to makeover the building on the corner of 1ST and 17AVE.

View attachment 509018

Is it different? Yes. Is it better? No. There are random random planters, a weird rock garden (which I guess is better than dead grass), a pull through driveway, and generally really poor urban design.

View attachment 509019
No irrigated planters filled with rocks, 100% of the design is how to get a garbage removal truck to the Molok garbage system that will be the centre piece of the frontage onto 17th Ave. Truly inspirational stuff. They couldn’t have extended the building forward to meet the sidewalk or used the 17 Ave frontage area for huge patios? Just garbage removal and two parking stalls, gotcha. At least the mobility engineers reviewing the file will love it.
 
When the R-CG comes up for a vote, expect all the usual suspects (Elbow Park, Rosedale, Mount Royal) to seek and receive exceptions because “heritage”. There will be some upzoning in poorer neighborhoods where developers don’t want to build rowhouses anyway.
They are free to request heritage designation of their homes at any time, but so far they mostly haven't, interesting hey?
 
One item I'm curious about is this one:
1.C.2. Rescind the Single Detached Special Policy Area in the Guide to Local Area Planning and relevant statutory plans, immediately.

Being that the North Hill plan has already been passed would that need a council meeting and public hearing? Since it's basically rewriting part of the plan.
From what I can see this applied specifically to Rosedale in the NHLAP

Not sure if such a thing exists in the Riley communities LAP which is scheduled to present the completed plan to the public in 4 weeks.
 
Last edited:
No irrigated planters filled with rocks, 100% of the design is how to get a garbage removal truck to the Molok garbage system that will be the centre piece of the frontage onto 17th Ave. Truly inspirational stuff. They couldn’t have extended the building forward to meet the sidewalk or used the 17 Ave frontage area for huge patios? Just garbage removal and two parking stalls, gotcha. At least the mobility engineers reviewing the file will love it.
Development engineers at the city are very inflexible on allowing any design that requires a garbage truck to back up onto a major street - this is 100% driving the site plan.

They could easily push the moloks to the west side of the site and free up a massive patio area if there was flexibility on that requirement.
 
Meanwhile, the Underwood site has garbage trucks parking on the damn sidewalk and then backing into 1st every day... lol

1695743874387.png

Edit - lol, it's even worse than I suggested. A truck wouldn't even block the whole over-built 4 lane one way road, just the right hand lane.
 
Last edited:
I think this is more a function about where this kind of density is not allowed, rather than where it is. It's not that we should restrict to apartments only, it's that we shouldn't restrict high density townhomes to mostly only main streets.These new row home developments are great density boosters, but are occurring on the main streets because they have difficultly going into the neighbourhoods themselves. We are seeing a reflection of strong demand for townhomes and ground-oriented stuff outcompeting apartments because they are directly competing in often the only strips of reasonably high-density zoning in many blocks.

I'd prefer to see everything allow this kind of row house development, including main streets and off streets. Political issues aside - I don't see a compelling public good rationale why we would limit small scale apartments and high density row housing anywhere.
This is a great take but reality, at least in my area, is a little different. What you want is happening in Altadore/Marda Loop along 19th and 20th Streets there are multiple Row/Townhomes going in while 33rd Avenue gets Sarina Apartment after Sarina Apartment. The issue with 33rd is the fact they built multiple duplexes and infills over the last 20 years that will be right next to half block apartments.
 

Back
Top