University District | ?m | ?s | University of Calgary Properties Group

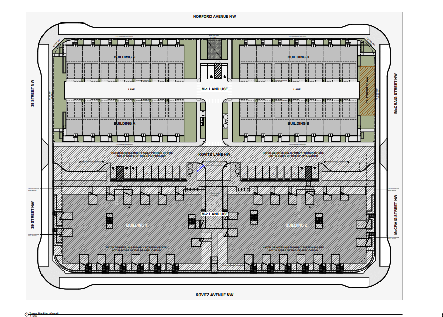
More UD goodness. This new DP is on Block 11. Architect is Gravity, developer Luxuria.

1759876708301.png
1759876732122.png
 
Glad to see Scholar going ahead, wonder what is going to happen with the massive ditch on the west side of the site...
 
I wonder if the presence of UD in the south near University Heights will promote more denser builds there. There is already one new development in the community as well as older denser builds near University Drive. It already seems sorta a random SFH isalnd surronded by other things, might as well make the whole area dense
 
Took my guy out for a dinner & movie date last night. Man this neighbourhood is turning out fantastic. Better than my wildest hopes for this city. AAA+ 💯🏆

20251009_173159.jpg
20251009_182909.jpg
20251009_182925.jpg
20251009_210140.jpg
20251009_210151.jpg



Bonus pic of Mackimmie Tower

20251009_171525.jpg
 

Back
Top