Trail 19 | 22.25m | 6s | Eagle Crest | FAAS Architecture

4D4DC9DF-ADF6-49A5-9DEE-B6E9DB693297.jpeg
 
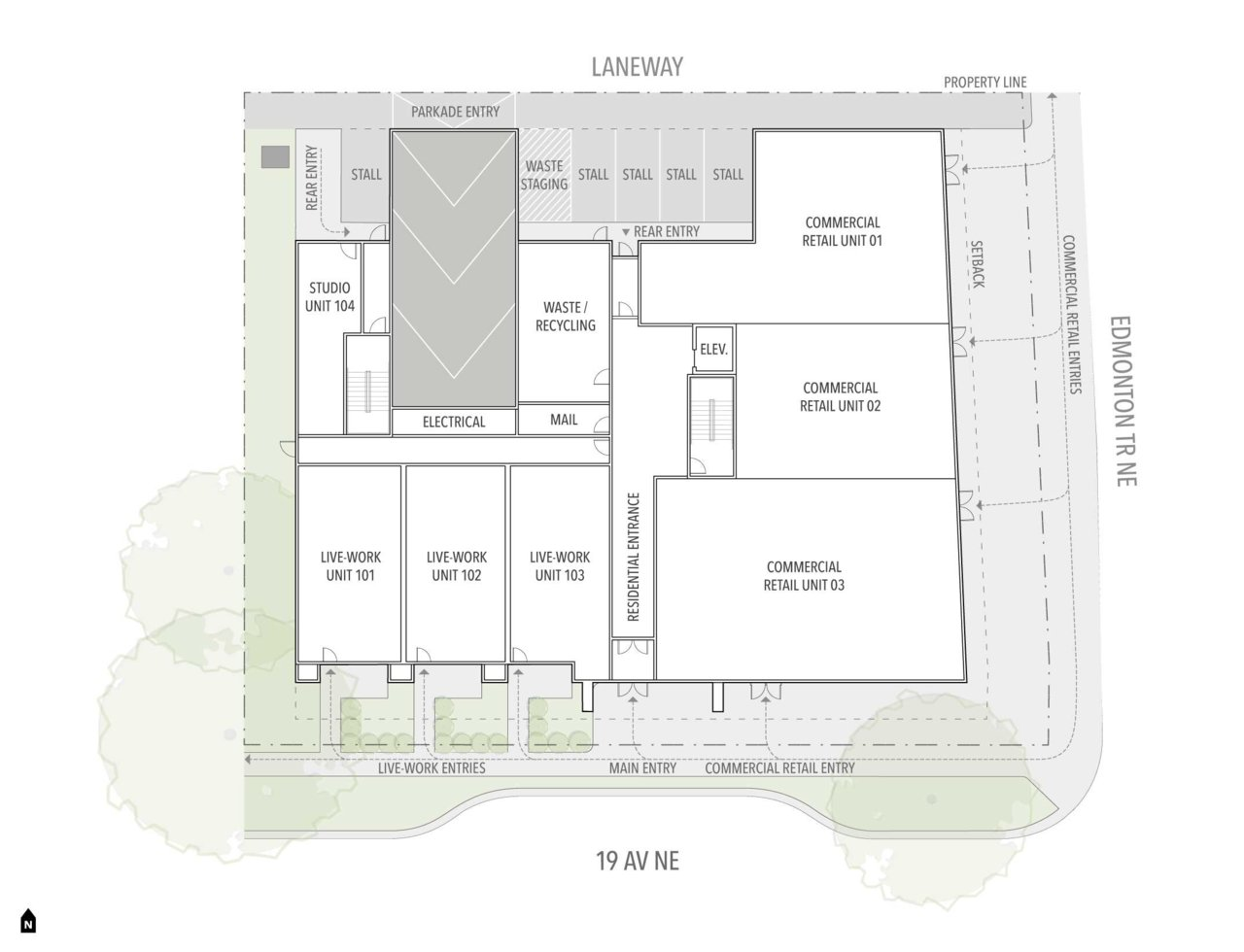
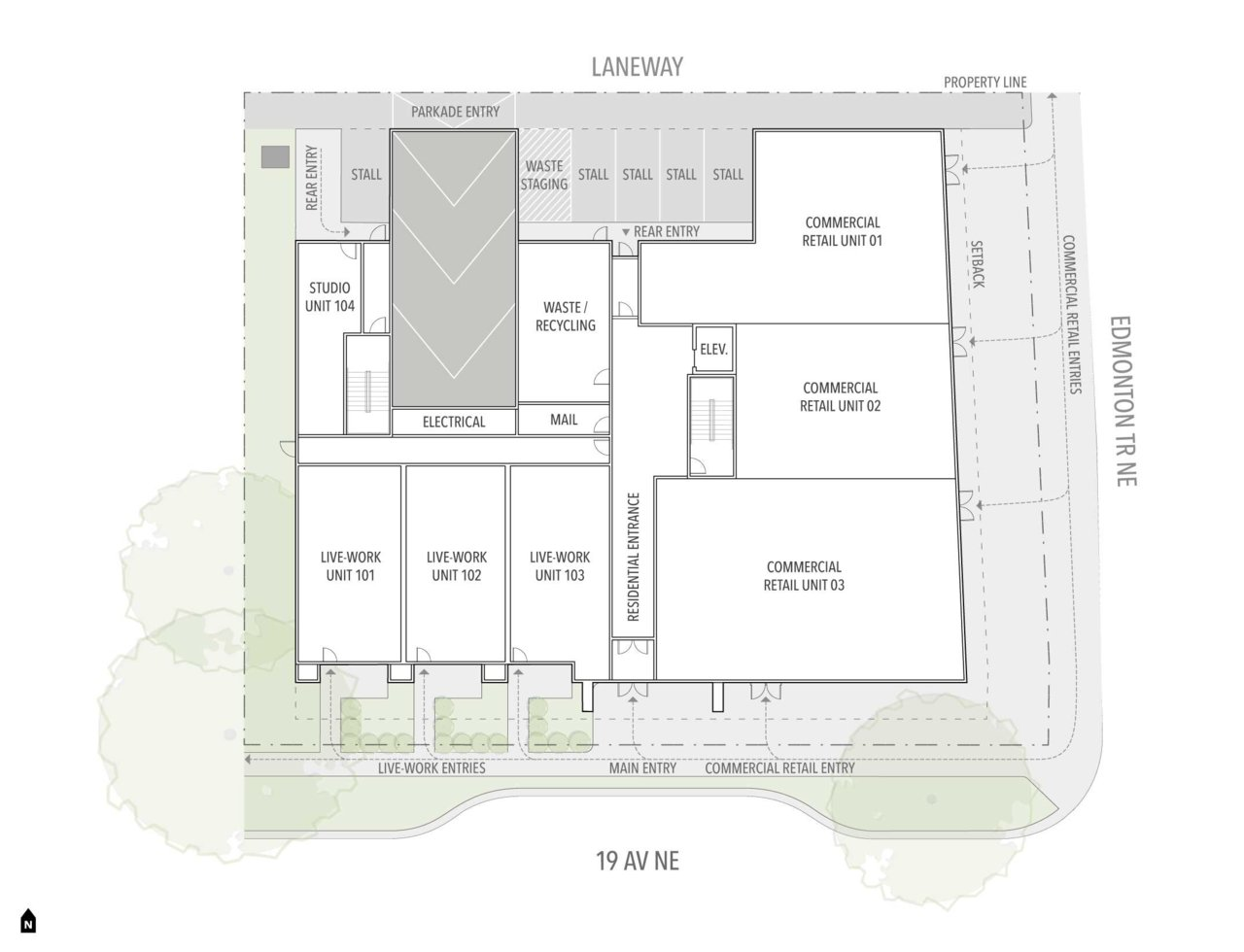
From the first page, the site plan shows a ramp down to a parkade off of the laneway. Not sure how many stalls there are though:
View attachment 396375
That makes sense now. When they were pouring the foundation I kept looking for an entrance to the underground parking. Seems weird that the entrance/exit is into the alley and not 19ave. Very tight alleyway
 
Last edited:
That makes sense now. When they were pouting the foundation I kept looking for and entrance to the underground parking. Seems weird that the entrance/exit is into the alley and not 19ave. Very tight alleyway

Why remove units to enter off 19th? It’s common for parkade entrances to be off the laneway, and thank heavens ‘cause they’re ugly.
 
That makes sense now. When they were pouting the foundation I kept looking for and entrance to the underground parking. Seems weird that the entrance/exit is into the alley and not 19ave. Very tight alleyway
What's the point of alleys if we don't use them for vehicle access? Alley is a far more appropriate place for a driveway than a nice tree-lined street.
 

Back
Top