The Edgewater | 30.6m | 9s | Trico Homes | S2

A new DP for this site. Trico Homes, S2 architecture.


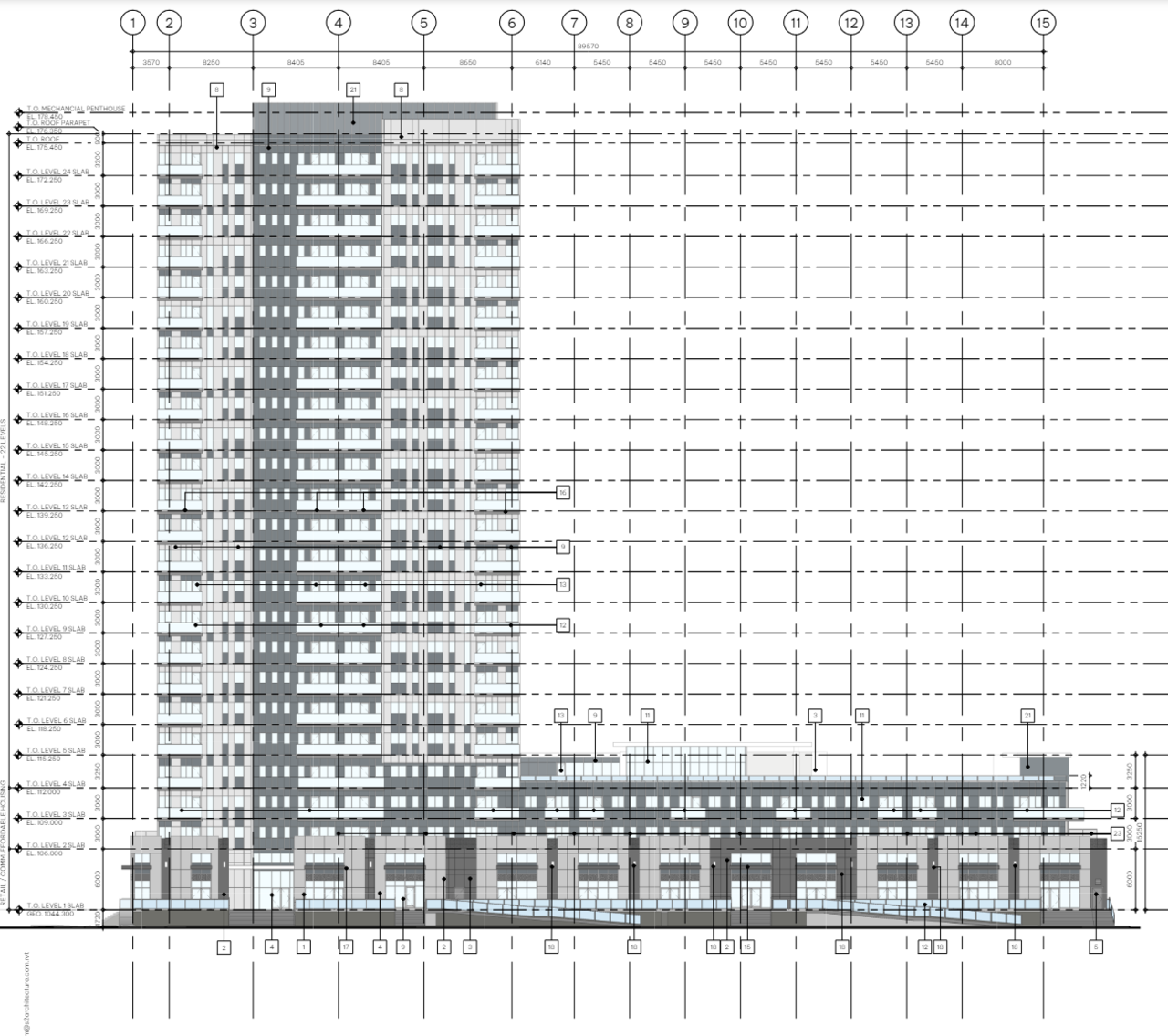
Working off my cellphone but I don't think there is a rendering in the drawing package. Here is an elevation.

Screenshot_20240628-170555.png
 
This is a downgrade from the last design. That's somewhat to be expected but, not such a massive downgrade for this highly visual site. There's a chance all those small spandrel panels and mullions can come together. It's more likely that it won't.
 
This is a downgrade from the last design. That's somewhat to be expected but, not such a massive downgrade for this highly visual site. There's a chance all those small spandrel panels and mullions can come together. It's more likely that it won't.
better than parking lot, or weeds yard bro. at least there is something, better than nothing
 
Something will be built here whether it is this proposal or the next proposal or the one after that. All those other parking lots and weed lots will be developed and the downtown population will reach saturation. Growth isn't going to completely stall for that not to happen.
 
I couldn't tell from the DP if there are future plans for a second tower, but I would have expected two towers.
 
Well that’s disappointing. I loved the original design, but given how things have gone for the EV area I’m happy something’s at least getting built.
 
I was super excited when I saw this, until I realized this was an old proposal being replaced with a bland downgrade. Hopefully a new rendering will come out giving us a better look.
 
If they do not build a second tower, they should leave half of the parcel undeveloped, meaning no extended podium—that way they can sell the land or build in the future.
 
With Arris and this together that’s quite a few people added to the area in a short time. I’ve got a feeling we’ll see this go ahead sooner than later. Just a hunch though…
 

Back
Top