Crosstown | 88m | 30s | Anthem

Is there another prominent plot of land or project that's been suffering from development blue balls for longer? Maybe the Eau Claire parking lots? Stampede Station? The mythical new ACAD building?
They were talking of a DT ACAD campus when I was attending in the 00’s.
 
If someone has access to the Calgary Herald archives, there is an article from around Sep-1995 detailing a multi-highrise proposal for the site designed by Manu Chugh. The city had recently done some grading on the downslope between the rec center and the community that allegedly reduced flood risk. This supposedly unlocked the entire site south to 25th for redevelopment. The townhouses along the river were built right away. The 5 store condos immediately to the east went up in the late 90's.

I went to St. Mary's (class of '88). At that time, Erlton (and much of Mission) was mostly sketchy single family houses. As curious teenagers, we would look into the yards and sometimes the windows to gawk at the heroin addicts and prostitutes.
 
Photoshop_Of5UQu9o5J.png

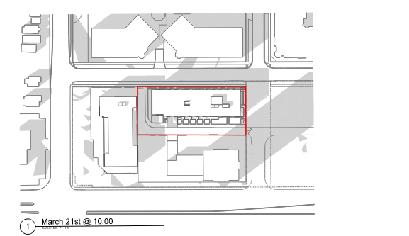
DPs are downloadable now, one was submitted in late November. Shadow diagram analysis shows a tower in the 80 metre range again. Though these are 'conceptual and subject to change'
 
Won't Anthem compete its Westmount project before started this? I suspect the company will struggle due to its Vancouver market exposure
 

Back
Top