61st Ave Residential | 64m | 19s | Cadillac Fairview | Zeidler

It's basically an abandoned parking lot right now, so this is still a huge improvement to the area in my mind. This is one area of the city that can support mixed use pretty well without the NIMBY pushback.
 
A few tweaks here and there you could have something that could lead to Griffintown. Instead the developer, a major national brand, doesn't seem to care about creating something better than the status quo which will only encourage other property owners not to care. IMHO, TOD should have a higher standard than high rises around transit and residential being homes than workplaces should have the highest design standards of all. Doesn't even matter if there is ground floor retail.
It would take a lot more than a few tweaks to turn the area into a Griffintown or even lead it in that direction.
You’d need a cohesive plan with one entity controlling the development like U/D, EV, West District etc..
It would be great if it was nicer, but we’re not in a position to be choosy.
 
Ideally that whole area will see such intense redevelopment that it doesn't really matter. This is just one of dozens of new buildings. It's not exactly a showpiece
 
It would take a lot more than a few tweaks to turn the area into a Griffintown or even lead it in that direction.
You’d need a cohesive plan with one entity controlling the development like U/D, EV, West District etc..
It would be great if it was nicer, but we’re not in a position to be choosy.

One can dream instead of the typical response that it adds density which doesn't give too much concern to the future occupants here and how they will move about the majority of the time. Of course, initially they will drive and that's exactly how these towers were designed. No initiative put into a creating a walkable future with follow up development. Developers are prone to copy one another leading to discussions of precedence on the forums. Every follow up development will likely take the same lazy approach with high density housing with cars at the forefront.

Griffintown is basically boxy slabs one after another. Ditch the podium and cut down the length of the slabs would do wonders here. Above ground parking should be behind street facing units. It shouldn't matter if it's a main street or a public lane.

The majority of us are in no position to change anything. Why not wish for the best than accept something for being better than a parking lot? It's one thing if you like a design. Most people are pretty harmonious on such things. The difference is the acceptable standard. Shouldn't where and how people live matter more than simply an increase to population density particularly when population growth is through outsourcing people than home grown?
 
Last edited:
The area does have a C-Train station, and about 7 years ago the City did a complete revamp of 61st Avenue to make it a nicer walkable connection between the station and Chinook mall, one of the largest employment centers in Calgary I bet. This coincided with the construction of the pedestrian overpass, to make crossing Macleod Trail easier as well. There isn't much need to go north/south of here (unless you want to just do the odd trip through the parking lot to Home Depot). I can see many residents easily living here without needing to drive on a regular basis.

May 2016:
1733324935656.png


Vs. May 2024:
1733324965074.png
 
Shouldn't where and how people live matter more than simply an increase to population density particularly when population growth is through outsourcing people than home grown?
As someone who has struggled to find an affordable home for years and has had to move several times because the owner decides to sell, I disagree. Form would be great, and I agree nicer building are nicer, but this area needs fast, affordable housing. Most of the residents of this area will probably be the people working at the mall not people shopping at the mall. Different economic realities for them. This area is not a great place to hang out currently, no luxury design would sell in the current neighborhood.
 
This area has a chance, over a couple decades mind you, to turn into an interesting mixed use light industrial and residential area. Windsor park is decently dense around Chinook. I can see more residential opportunity coming. I think CF would own the parcel just to west of here as it is branded "Chinook". So there's an opportunity there as well. Not to mention some of the other parcels. This doesn't have to be the upper west-side I think it can be a little warehouse district. Some residents and some businesses.
 
Last edited:
While the form factor is 70s slab, aesthetical treatment wise, I don't mind this. The colors look relatively harmonious, the amount of them looks to be kept in check, and I'm always a fan of white. I'm not going to call it timeless, but assuming we get what's shown here, this will will age much better than many of the spastic developments with 6 clashing colors, and/or pixelated squares.
 
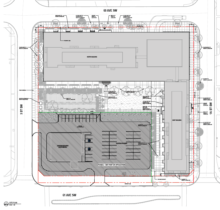
A new DP is in for the lot that Cadillac Fairview owns next to Chinook C-Train station. This is the large surface parking lot on the north side of 61st Avenue, with the Scotia Bank in the SW corner of the parcel. This DP covers 3/4 of the lot, looks like the bank is sticking around for a while. What has it been, 18ish years since the Chinook Station Area Plan was passed? About time we finally see something resembling TOD at it.
View attachment 616669
View attachment 616670

View attachment 616671

View attachment 616668
And so it begins 🥰🥰


The design isn't great, of course. Though i don't understand the complaints about it. It's far above the design quality we typically see in suburban developments in this city. This is nothing but a win.
 
And so it begins 🥰🥰


The design isn't great, of course. Though i don't understand the complaints about it. It's far above the design quality we typically see in suburban developments in this city. This is nothing but a win.
Agree, I can't understand any need for gripes against this one. People see building width and instantly draw a conclusion, but it's not a blocky spandrel mess with tacked on elements. There's a fair amount of glass, lots of active frontage at the street of a perfect human scale base, well screened parkade at the back side of the building, and a decently inoffensive material palette.

We're seeing much worse proposed all over the city and look at the surroundings this development is being inserted into. I'd say we might actually prefer this at 14th St & 17th's Sentinel over the suburban design we're getting there. The 5 storey base of this development is essentially just what's being built over there, in a way denser area.
 
And so it begins 🥰🥰


The design isn't great, of course. Though i don't understand the complaints about it. It's far above the design quality we typically see in suburban developments in this city. This is nothing but a win.

I can understand the frustration, especially when you're aware of how other cities like Van and Toronto are developing their industrial parking lots.
Sure, the speedy delivery of affordable housing is important, but this is a very prominent location near the city's best mall.
They can absolutely kill two birds with one stone.
This one looks like the designers and the planning behind the project wanted it to look suburbian

Example:

Brentwood Block replacing parking lots and industrial buildings, much like the area around Chinook.
Provides 3500 affordable rental units

grov.jpg


conbrent2.jpg


conbrent.png

coffee2.jpg

coffee3.jpg
coffee4.jpg
 

Attachments

  • coffee.png
    coffee.png
    1.1 MB · Views: 50
  • coffee1.png
    coffee1.png
    1.4 MB · Views: 56
The building is fine, but I wish that this dishonest architectural practice would be banned:
1733381627809.png


This is only the perspective from the southwest corner if you are on 30 foot stilts, or if you've climbed up to the top of the light standard. This is what the Scotiabank looks like from the SW corner of 61 Ave from Streetview, which is still substantially above pedestrian head height:
1733381738060.png

I'm sure whatever rendering software is being used knows to the centimetre how high the camera is from ground level; the architects making the rendering should show what the building looks like from 5 feet above the ground, not 35 feet.
 
The building is fine, but I wish that this dishonest architectural practice would be banned:
View attachment 617117

This is only the perspective from the southwest corner if you are on 30 foot stilts, or if you've climbed up to the top of the light standard. This is what the Scotiabank looks like from the SW corner of 61 Ave from Streetview, which is still substantially above pedestrian head height:
View attachment 617118
I'm sure whatever rendering software is being used knows to the centimetre how high the camera is from ground level; the architects making the rendering should show what the building looks like from 5 feet above the ground, not 35 feet.
On the DP the Scotiabank is labelled as a "Phase 2" so one day it'll be replacement with more tower and podium.
 
I can understand the frustration, especially when you're aware of how other cities like Van and Toronto are developing their industrial parking lots.
Sure, the speedy delivery of affordable housing is important, but this is a very prominent location near the city's best mall.
They can absolutely kill two birds with one stone.
This one looks like the designers and the planning behind the project wanted it to look suburbian

Example:

Brentwood Block replacing parking lots and industrial buildings, much like the area around Chinook.
Provides 3500 affordable rental units

View attachment 617116


View attachment 617109

View attachment 617110
View attachment 617113
View attachment 617114View attachment 617115
They may not look as sexy but wider buildings tend to have larger units, unlike the shoeboxes in Vancouver.
 

Back
Top